Что это такое и для чего нужен?
Электрическим лобзиком называют режущий инструмент, который имеет электрический привод. Его отличием от пил, резцов, машин для фрезерования считается значительная точность при выполнении резов. Электролобзик – универсальное приспособление, которое выполняет нарезание материала различного рода. Используя устройство, можно выполнять не только продольный пропил, но и фигурный, не исключая нарезку материалов под углом.


Если нужно выполнить прямолинейный рез или со сложной траекторией, пропил высокой точности с чистотой кромок, черновую нарезку заготовки, вырезку отверстия разной формы и площади, то в такой ситуации без лобзика не обойтись.
Данный вид инструментов стоит считать маленькой пилой, которая оснащается приводом электрического типа. Электролобзик нашел использование в бытовых работах. Во время ремонта помещений его можно применять для резки ламината, плитки из керамики, фанеры, гипсокартона.

Дополнительные функции электролобзиков
Если вы сравнивали цены на разные модели лобзиков, то вероятно заметили, что стоимость более функциональных устройств гораздо выше стоимости простых моделей. Дело в том, что каждое техническое дополнение требует определенных затрат труда и времени на производстве. Все это обусловливает высокую цену. Если вы не хотите переплачивать стоит заранее подумать, что вам действительно пригодится в работе, а от чего можно и отказаться.
Какую роль играет бренд производителя
И так вы узнали как выбрать электролобзик, главное об особенностях конструкции и характеристиках лобзиков и решили, какой выбрать – аккумуляторный или электрический, а также определились с необходимыми функциями. Однако выбор лобзика этим не ограничивается
Пришло время обратить внимание на производителя. При выборе бренда ориентируйтесь, прежде всего, на собственный опыт работы с инструментом какого либо производителя
Например, у вас была дрель или шлифовальная машинка «Интерскол», которая показала себя в работе вполне достойно.
Значит, и электролобзик вы можете смело выбрать из ассортимента этого производителя. Если вы всю жизнь пользуетесь только инструментом «Bosch» и остаетесь ему верны, то сомнений по поводу выбора у вас не будет. А что делать, если вы все еще находитесь в раздумьях? Советую почитать отзывы других пользователей о моделях конкретных фирм. В настоящее время хорошо себя зарекомендовал электролобзик следующих бредов: Metabo, Makita, Dewalt, Felisatti, AEG. Эти производители предлагают по нескольку моделей разной мощности, поэтому есть из чего выбрать.
В следующей статье я расскажу как выбрать ручной фрезер.
Лобзик – ручной или электрический инструмент для фигурного, прямого пиления различных материалов. В зависимости от особенностей полотна и конфигурации может работать с деревом, керамикой, пластиком и даже стеклом. Отличается не только функциональностью, но сферой применения. Это незаменимое приспособление для тех задач, с которыми не могут справиться ручная либо циркулярная пила.
Как пилить дерево
Выбор пилки. Распил древесных пород выполняется стандартными пилками с направленными вверх зубьями средней величины с шагом зубчиков от 2,5 до 4 мм. Длинна пилки подбирается в соответствии с толщиной заготовки.
Частота хода. Частота хода выставляется на максимум. Уменьшать этот показатель следует лишь в том случае, когда полотно склонно к перегреву, либо в процессе работы ощущается дискомфорт.
Маятниковый ход. Для увеличения скорости пиления необходимо включить маятниковый ход
Он негативно сказывается на качестве пропила, поэтому использовать его нужно в том случае, когда важна быстрая работа, а качество пропила особо не важно
Процесс пиления. Работать следует по тыльной стороне материала, чтобы избежать повреждений изделия. Перед пилением заготовку необходимо разметить. При пилении инструмент необходимо прижимать ровно к поверхности и плавно направлять его. Толкать его сильно вперед не нужно, т. к. по мере реза он сам продвигается в материале, особенно когда включен маятниковый механизм.
Пилки
Их правильный выбор порой имеет решающее значение. Различаются они зубьями (формой, шагом и разводкой) и материалом.
ЗУБЬЯ: в наибольшей степени качество реза зависит от шага зубьев и их разводки.
Для работ, требующих особо чистого пила, без сколов лицевой поверхности, используют полотна с обратным зубом (они «вгрызаются» в заготовку при ходе вниз).
Задачи противоположного характера – грубая, но быстрая распиловка – решают при помощи «расходки» с крупными и широко разведенными «резцами».
Похожие пилки, но без разводки, тоже производительны и будут удобны для толстых заготовок – их меньше уводит от вертикали.
Совместить скорость и качество реза позволяют полотна с переменным шагом зубьев
Сверху, ближе к лицевой поверхности заготовки, шаг мелкий, а книзу он укрупняется.
Когда речь идет о тонких листовых материалах, важно учитывать следующее эмпирическое правило: шаг зубьев должен быть таким, чтобы в зацеплении одновременно находилось не менее трех. Соблюсти его особенно важно в случае металлических заготовок.
МАТЕРИАЛ: для большинства работ хорошо подходят однородные полотна, но в особых случаях применяют неоднородные. Самые популярные из таких – биметаллические. Они довольно дорогие, поскольку сложнее в изготовлении, зато обладают рядом уникальных качеств. Их зубья, выполненные из твердых марок металла, способны резать не только древесину, но и сталь, пластики и прочие материалы повышенной прочности. Интересно, что несущая полоса у биметаллических полотен, напротив, податливее, чем обычно. Это снижает вероятность сломать пилку (при необходимости ее даже можно сгибать, что в некоторых ситуациях оказывается весьма кстати).
Для работ по керамике, стеклу и другим подобным материалам используют полотна с алмазным напылением и твердосплавными напайками. Такие пилки легко справляются с настенной кафельной плиткой, а вот особо прочные сорта напольной (а также керамогранит) им «не по зубам».
Какие бывают лобзики
Различают лобзики двух типов:
- С грибообразной ручкой;
- С рукояткой в виде скобы;
Который из них лучше, трудно сказать однозначно, это зависит от многих факторов, и потому производители выпускают лобзики в обеих вариантах.
Рабочим инструментом в электролобзике является пилка, которая совершает поступательные движения по специальным направляющим. Рабочий ход этой пилки осуществляется только при движении вверх, что позволяет инструменту прижиматься к поверхности детали, а не отталкиваться от нее. Особенностью такого принципа работы является то, что при работе с хрупкими заготовками резы получаются без сколов и заусенцев. Обычно в качестве направляющих для пилки используется опорный ролик, но существуют и модели лобзиков с направляющими в виде губок. Бытует мнение, что второй тип направляющих уменьшает нежелательные колебания пилки и способствует более точной линии реза. При этом следует учитывать, что в местах с трением повышается износ деталей.
Большое значение при выборе электролобзика имеют граничные показатели толщины резания различных материалов. Обычно в паспорте указываются данные для сталей, цветных металлов и дерева. Эти показатели наряду с мощностью позволят определить возможности выбранного инструмента. Кстати, если выбирая лобзик, вы сравниваете две модели, у одной из которых при одинаковой мощности указана меньшая толщина резания цветных металлов, к примеру, то это не значит, что данный прибор хуже. Просто при тестировании в качестве материала для одного инструмента могла использоваться медь, а в другом – алюминий. А поскольку плотность у этих металлов разная, то и показания отличаются. Как бы то ни было, чем мощнее лобзик, тем с большей толщиной любого материала он может справиться.
Важной особенностью различных моделей электролобзиков является маятниковый ход пилы, когда при работе лезвие совершает движения не только вверх и вниз, но и еще по кривой, подпиливая материал впереди реза. Такой маятниковый ход применяют только для прямолинейных резов, при этом их качество значительно увеличивается. Величина амплитуды маятникового хода регулируются в лобзиках при помощи переключателя – это делается для регулировки инструмента при работе с разными материалами
Считается, что маятниковый ход продлевает срок эксплуатации пил в лобзике
Величина амплитуды маятникового хода регулируются в лобзиках при помощи переключателя – это делается для регулировки инструмента при работе с разными материалами. Считается, что маятниковый ход продлевает срок эксплуатации пил в лобзике.
Некоторые модели электролобзиков оснащены регуляторами числа резов. При нетвердом материале число резов максимально, а чем тверже материал, тем меньше число резов. Кстати, некоторые материалы по типу органического стекла необходимо резать с дополнительным охлаждением.
Важной деталью лобзика является опорная плита. Именно этим элементом он перемещается по поверхности обрабатываемой детали. Для удобного резания материалов под углами опорная плита оснащена специальным механизмом, позволяющим зафиксировать инструмент под необходимым углом к поверхности детали
Как правило, электролобзики могут закрепляться под углом в 45 градусов в одну или другую сторону, но встречаются модели с другим шагом градусов – 15, 30, 45
Для удобного резания материалов под углами опорная плита оснащена специальным механизмом, позволяющим зафиксировать инструмент под необходимым углом к поверхности детали. Как правило, электролобзики могут закрепляться под углом в 45 градусов в одну или другую сторону, но встречаются модели с другим шагом градусов – 15, 30, 45.
Дорогие модели лобзиков могут оснащаться константной электроникой. Вне зависимости от нагрузки, эта система автоматически поддерживает установленное число двойных ходов в минуту.
Для удобства во время длительной работы практически все модели лобзиков оборудуются кнопкой застопоривания выключателя. Это делается для того, чтобы мастер во время работы не держал постоянно палец на кнопке пуска.
Для защиты мастера электролобзики оснащаются специальными предохранительными щитками, а некоторые модели оснащаются и механизмами от прикосновения.
Для того, чтобы во время работы лобзиком образовывалось меньше пыли, большинство моделей оснащается приспособлением для подключения пылесоса.
Что такое маятниковый ход?
Маятниковый ход или так называемая «подкачка» повышает скорость распила материала. Он особенно эффективен при немалом плане работ с крупногабаритным материалом. Небольшие колебания при маятниковом ходе усиливают эффективность движений пилы, принуждают ее «вгрызаться» в поверхность. К тому же такая амплитуда хорошо удаляет опилки из выпиливаемых отверстий. В результате это усиливает погружение зубьев и ускоряет распил.


Когда функция маятника не включена, пилка делает движения вверх-вниз и производит ровный разрез. Почти во всех моделях электролобзиков есть регулировка амплитуды маятника хода. Она осуществляется специальным переключателем. Это способствует выбору оптимального режима пиления того или иного материала. Большое количество ступеней регулятора помогает точнее выбрать правильную настройку инструмента и найти равновесие между скоростью и ровностью распила.

Назначение
Названные выше «непрофильные» операции выполняются лобзиком с рядом ограничений, иногда весьма существенных. Впрочем, когда перечисленного арсенала под рукой нет, подобные размышления вряд ли уместны. Разговор о способах применения начнем все же с тех работ, на которые инструмент изначально рассчитан.
В современном строительстве очень популярны листовые материалы: гипсокартон, ацеит, ламинированные панели; часто в ход идут искусственные аналоги «вагонки» – панели из винила, МДФ или металла. В этих случаях за слоем отделки остаются пустоты, что позволяет использовать в большом количестве всевозможные встроенные элементы (светильники, выключатели, розетки и т.п.). Размещать их удобнее, когда материал уже смонтирован. Тут-то и пригодится лобзик – с его помощью аккуратно и быстро выпиливают отверстия любой формы.
С подобными же проблемами сталкиваются сборщики кухонной мебели: им нередко приходится вырезать отверстия в столешницах под мойки, монтировать блоки розеток на декоративные панели, делать «ходы» для подводки воды и стока.
Элементы интерьера и детали мебели тоже иной раз требуют скругления, и если в условиях серийного производства поможет фрезер с шаблоном и/или ленточнопильный станок, то домашнему умельцу или начинающему мастеру без лобзика не обойтись. Когда речь идет о работе на выезде, велик соблазн заменить и циркулярную пилу – в ряде случаев это с успехом удается.
Действуя лобзиком, никакие шаблоны не используют, в основном полагаясь только на разметку. В этом есть свой «плюс» (меньше подготовительных действий) и свой «минус» (выше ответственность оператора). Впрочем, самая серьезная опасность, подстерегающая пользователя, связана не с «курсовой устойчивостью», а с поперечным уводом полотна от вертикали. Для неопытного человека это часто бывает неожиданностью: с верхней стороны заготовки рез идет точно по линии и придраться к качеству трудно, тогда как снизу вместо прямой появляется «волна» или же пилка уходит в одну сторону (характерно для круговых резов). Другая проблема актуальна лишь в некоторых случаях – сколы на лицевой поверхности заготовки. Решают эти две задачи схожими методами: подбором пилки и режима работы. Начнем со второго.
Как вставить пилку в электролобзик?
Электрический лобзик – инструмент не такой уж и старый, ему около 30 лет. Мало изменившись конструктивно, он довольно далеко ушел от прототипа в плане удобства работы и мощности. Наибольшим модернизациям подверглось удерживающее полотно крепление. Колодочное крапление – узел достаточно простой и вставить в него пилку обычно не составляет труда, тем более что форма ее хвостовика и толщина для такого крепления абсолютно не имеют значения.
- Чтобы поставить пилку в колодку, нужно слегка ослабить против часовой стрелки оба монтажных болта. Полотно вставляется зубцами вперед, затем поочередно, равномерно затягиваются болты. Нужно следить, чтобы не было перекоса полотна. Затягивать нужно достаточно сильно.
- Если на пилкодержателе один винт, то поменять пилки также будет несложно, подтягивать нужно всего один болт. Чтобы правильно установить полотно, нужно время от времени проверять его положение, слегка корректируя рукой. Затягивать до отказа не рекомендуется, это создает излишнюю вибрацию и может сказаться на качестве распила.


В быстрозажимных устройствах заменить пилку еще проще: отжав и удерживая клавишу, вставить хвостовик соответствующей пилки, отпустить клавишу. Если будет слышен щелчок, то хвостовик зафиксировался пилкодержателем.
Радиальное крепление не менее просто в обращении
Если электролобзик имеет такой вариант фиксации, то при установке пильного полотна очень важно не перепутать форму хвостовика. В настоящее время промышленность выпускает пилки с двумя типами хвостовиков: Т-образный и U-образный
Первый вариант пилок в настоящее время наиболее распространен. U-образный хвостовик имеет дополнительное отверстие для фиксации полотна.


Полотна для электролобзика делятся на несколько основных типов, который можно определить по форме и размеру зубцов, а также при помощи маркировки. Различные пилки позволяют успешно справляться с резкой древесины (доски), фанеры, ДСП, пластика, металла, кафельной плитки, гипсокартона, стекла.
- Деревянные заготовки пилят с помощью длинной пилки с величиной зубьев от 3 до 5 мм, с заметным разводом. На таких пилках бывает маркировка HCS, а также дополнительная – T101D, указывающая на большой размер зубцов.
- Металл можно пилить более короткой пилкой с зубцами 1-1.5 мм и волнообразной разводкой, в выборе пилки также поможет маркировка HSS и индекс T118A.
- Для ламината разработаны полотна с обратным наклоном.


- Пластик пилят полотнами со средней величиной зубцов (до 3 мм), имеющих небольшую разводку.
- Специальные полотна для керамики вообще не имеют зубьев, на них нанесено карбидное напыление.
- Есть универсальные пилки, режущие основные материалы, но, конечно, такие изделия подойдут не для всякой работы.
- Модели для фигурного реза имеют небольшую ширину и индекс T119BO.
При эксплуатации пильного полотна нельзя забывать, что это расходный материал и тратить время на то, чтобы наточить затупившиеся зубцы не имеет никакого смысла. Пришедшую в негодность пилку необходимо заменить.

7. ТОП-3 самых «живучих» лобзиков для дома
Конечно, после столь тщательного отбора хотелось бы приобрести действительно надежный инструмент для длительного пользования. Разнообразие предлагаемой продукции нереально большое. И чем больше смотришь каталогов, тем больше можно запутаться
Давно известно, что для того, чтобы приобрести действительно вещь, нужно обращать внимание на проверенных производителей и не скупиться. Мы подобрали для вас несколько моделей электролобзиков, которые подтверждают свою долговечность и безотказность большим количеством положительных отзывов реальных потребителей
К сведению – порядковый номер в списке роли не играет.
Все начинают свои обзоры с известных брендов типа Makita и т.д., мы так же не оминули вниманием эту торговую марку, однако начать решили с производителя, родом из Симферополя, который славится своими удачными моделями электролобзиков. Многие профессиональные работники отмечают, что модель фирмы «Фиолент»ПМЗ-600 Э эксплуатируется ими уже на протяжении долгого времени в достаточно интенсивном режиме и ни разу при этом не дала сбой
Лобзик справляется с толщиной древесной заготовки до 85 мм, со сталью толщиной до 10 мм и алюминием, толщиной до 20 мм. Мощность двигателя при этом составляет 600 Вт, а частота движения пильного полотна – 2600 раз/мин. Специалисты отмечают высокое качество начинки инструмента, которая определенно имеет запас прочности. Подошва инструмента выполнена из толстой штампованной стали, и имеет возможность наклона на угол 45 градусов. Есть функция регулировки числа оборотов и маятниковый ход, который при необходимости можно отключить. К недостаткам можно отнести вес модели, который достигает 2,4 кг. Может быть первое время, вам будет не очень удобно и тяжело работать;
Makita 4351 FTC. Лобзик от известного производителя качественного инструмента имеет грибовидную форму рукояти и больше подойдет тем, кто организовал у себя в гараже или на даче небольшую столярную мастерскую, нежели для разового бытового применения. При этом люди, тестирующие данный аппарат отметили, что корпус лобзика достаточно габаритный и широкий. Охватить инструмент одной рукой и при этом надежно его зафиксировать может быть проблематично. Двигатель имеет мощность 720 Вт, а частота движений пильного полотна может регулироваться и лежит в диапазоне 800-2800 раз/мин, ход полотна составляет 26 мм. Высокая мощность отразилась на весе инструмента, который достигает 2,4 кг, как и предыдущая модель. Лобзик работает тихо, не создает сильных вибраций, легко справляется с большими толщинами в соответствии с указанными производителем техническими характеристиками. Подошва очень добротная, выполнена из алюминия, имеет фиксацию в нулевом положении и под углом в 45 градусов. В комплекте имеется пластиковая антискользящая и защитная накладка на подошву. Патрон является быстрозажимным и надежно фиксирует полотна разной толщины. Из дополнительных функций присутствуют – плавный ход, маятниковый трехрежимный ход, подсветка рабочей зоны;
Bosch PST 650. Очень удобный и компактный лобзик с D-образной рукоятью от известного немецкого производителя сразу подкупает своим весом, который составляет всего 1,6 кг. При этом мощность двигателя составляет 500 Вт, а максимальное число возвратно-поступательных движений пильного элемента составляет целых 3100 раз в минуту. Благодаря такой высокой скорости максимальная толщина деревянной заготовки, согласно данным от производителя, составляет 65 мм, стали – 4 мм. Подошва инструмента выполнена из прочной стали, имеет жесткую фиксацию в нулевом положении и под углом 45 градусов. Патрон так же быстрозажимной, однако, фиксирует не все толщины пил. Лобзик оснащен функцией очистки рабочей зоны от опилок, которую можно регулировать. Можно с уверенностью сказать, что это один из лучших и безотказных моделей для домашнего пользования.
Особенности выпиливания
Электрический лобзик легко справляется с прямолинейным пилением. Также с помощью инструмента можно выполнить различные разрезы под углом и вырезать в заготовке овал или круг. Выполнение каждого вида разреза имеет свои особенности.
Круглые и овальные элементы
Контур фигуры наносится на подготовленное полотно. После этого с помощью дрели в заготовке проделывается отверстие, в которое устанавливается режущий элемент лобзика.
Процесс распила начинается и заканчивается в проделанной дыре. Если просверлить несколько отверстий, то круг или овал можно выпилить по частям.
Прямолинейные
С таким видом среза электрический лобзик справляется легче всего. На полотне делается разметка, по которой плавно ведется инструмент.
Для прямого распиливания материала можно устанавливать самую высокую скорость. Перед началом работы заготовку рекомендуется закрепить.
Под углом
Такой распил материала выполняется при предварительной установке подошвы под необходимым градусом уклона. После фиксации требуемого угла выполняются те же действия что и при прямолинейной резке.

Выпиливание лобзиком под углом
Несколько полезных советов
- Рабочий ход пилки электролобзика снизу вверх. На деревянных заготовках из-за этого появляются сколы на поверхности, обращённой в сторону лобзика. Чтобы их избежать, переверните деталь «лицом» вниз.
- Пилить детали со стороны «изнанки» не всегда удобно. В этом случае сколов будет меньше, если вы заклеите линию реза малярным скотчем.
- Ещё один способ избежать сколов – использовать пилки со специальным «обратным зубом». Однако, с ними становится очень заметной отдача и для удержания лобзика нужно дополнительное физическое усилие.
- Пилка лобзика – весьма упругий элемент. Из-за этого во время реза она изгибается, что, в свою очередь, приводит к уводу плоскости распила в сторону. Чем толще распиливаемая заготовка, тем больше увод. Чтобы его уменьшить, используйте самые острые пилки и подавайте лобзик вперёд как можно медленнее.
- Тонкий металл, тонкая фанера, оргалит могут сильно дребезжать при работе. Такие детали нужно положить на лист 10-12-миллиметровой фанеры и резать уже этот «бутерброд».

Правила работы
При помощи лобзика можно выполнить как обычные строительные задачи, так и выпилить разнообразные декоративные фигуры и узоры. Для начинающих существуют следующие несложные советы, позволяющие проделать работу максимально эффективно:
- начиная выпиливать, придется создавать упор в пояснице; такое положение дает возможность и держать полотно, и работать сидя, и даже делать это стоя;
- когда нужно резать небольшой фрагмент, сперва в обрабатываемой детали делается другим инструментом небольшое отверстие, а затем туда уже вставляется пилка лобзика; кстати говоря, чтобы сделать дырку в фанере хватит и шила;
- с лобзиком правильно работать медленно и размеренно, никуда не спеша; особо это касается сложных изящных рисунков, поэтому новичкам, кстати, лучше начинать с геометрических форм и простых контуров на разделочной доске;
- меняя угол выпиливания, разворачивать необходимо рабочую панель, а неиспользуемую пилку;
- работа завершается обязательной обработкой всех неровностей и шероховатостей;
- при помощи лобзика можно не только вырезать разнообразные узоры на прямой поверхности, но и, например, изготовить медальницу, шкатулку или рамку для фотографий; схемы для всех этих предметов и изображений обширно представлены в интернете.




Резьба электролобзиком проводится с такими уточнениями, как:
при работе не стоит давить на пильное полотно – оно быстрее и сильнее нагреется и как результат даже сломается;
широкая пилка позволит создать длинный, прямой разрез, так как ширина режущего полотна уравновесит положение лобзика;
работая с устройством, важно периодически менять пилу;
резка затупившимся полотном только испортит материал, да, к тому же, увеличит нагрузку на мотор, а также ухудшит количество и качество работы;
вырезание на металлах и оргстекле требует предварительной обработки обрабатываемого материала водой или жидким маслом для автомобиля; такое действие не только позволит обеспечить чистый рез, но и сохранит само режущее полотно в удовлетворительном состоянии;
если распилить необходимо металл с толщиной менее 1 миллиметра, под него дополнительно придется положить кусок фанерки, а также уменьшить подачу, чтобы не создавать вибрации;
устройству важно давать периодически отдыхать, особенно в случае с минимальной частотой ходов;
электролобзик следует периодически очищать и промасливать специальным средством.
Изделия, как правило, создаются по чертежам, которые распечатываются на плотном картоне, вырезаются по контуру и переводятся на фанерную заготовку. При этом контур следует наносить с внутренней стороны и простым карандашом, чтобы имелась возможность провести коррекцию. Специалисты рекомендуют размещать рисунок таким образом, чтобы по минимуму приходилось пилить вдоль волокон. Первым делом происходит проработка внутренних контуров. Для этого достаточно просто вести лобзиком по зафиксированной панели.


Иногда ровно отпилить не получается, потому что либо лобзик оказался наклоненным, либо ослабли крепления и натяжение пилки. Предотвратить это получится, если предварительно настроить оборудование и подтянуть все крепежи. Когда пилка уже застряла, ее нужно аккуратно извлечь и начать нанесение рисунка заново, следуя параллельно испорченной линии. Пилить без сколов получится, если выбрать качественный материал, а также соблюдать следующие правила:
- обработка некачественной фанеры должна проходить максимально интенсивно с использованием пилок, оборудованных мелкими зубчиками; кроме того, на помощь придет и режущее полотно с обратным зубом;
- с обратной стороны стоит заклеивать линии распила скотчем или клейкой лентой, а также увлажнять поверхность;
- перед началом создания фантазийных узоров необходимо отработать базовые;
- чтобы сделать внутренний круг, придется сперва высверлить небольшое отверстие, диаметр которого позволит разместить внутри пилку; движение распила должно будет идти по внутреннему контуру изображения с ходом средней интенсивности;
- тупые и прямые углы образуются путем поворачивания обрабатываемого материала, совмещенного с плавным движением лобзика;
- острые углы получают из двух пропилов, сведенных в одной точке;
- овальный контур получается также при разворачивании фанерки;
- работа всегда начинается из центра, а затем двигается к краям заготовки.


Как пилить ДСП, ламинат
Далее рассмотрим, как ровно отпилить ДСП электролобзиком, чтобы избежать повреждений ламинированной лицевой поверхности.
Выбор пилки. Специалисты рекомендуют использовать пилку обратного реза. Правда, в процессе работы может возникнуть чувство дискомфорта из-за повышенной вибрации, зато качество пропила не пострадает. Если же пиление выполняется обычной пилкой, работы проводятся по тыльной стороне обрабатываемого материала.
Частота хода. Частоту хода необходимо выставить максимальной.
Маятниковый механизм. Чтобы не образовывались сколы маятниковый механизм необходимо выключить.
Процесс пиления. Инструмент необходимо плотно прижимать к поверхности материала, при этом вести его нужно плавно без сильного нажима.
Сколы появляются именно на той части материала, которая обращена к инструменту. Поэтому если распил производится пилкой с обычными зубьями, то можно заранее определив лицевую сторону изделия произвести пропил по тыльной стороне.
Кроме этого для осуществления пропилов в ДСП или ламинате можно использовать противоскольный вкладыш. Это небольшая деталь с пропилом, которая вставляется в специальные направляющие на подошве. Самым идеальным вкладышем является тот, в котором пропил точно соответствует толщине полотна пилки. Поэтому некоторые производители в комплекте с электролобзиком поставляют несколько таких вкладышей. При этом пропил в каждом из них нужно сделать самому. После чего можно приступать к пилению ДСП.
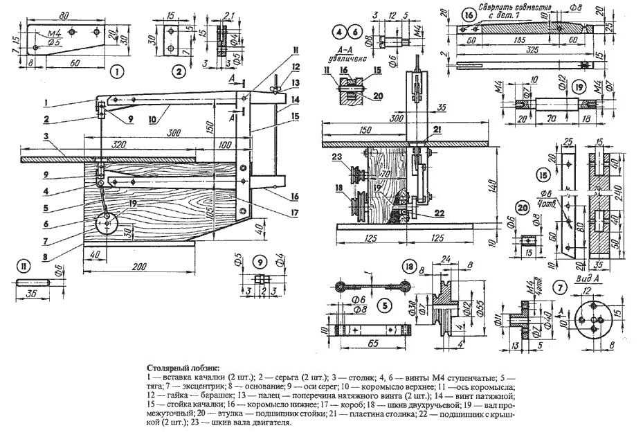
Инструкция по сборке
Лобзик изготавливают из компрессора холодильника, обычной дрели. Привести в движение режущее полотно можно при помощи двигателя от стиральной машины. Другой вариант — использование ручных электролобзиков, старых швейных машинок. На рисунке представлен чертеж конструкции.

Как переделать ручной лобзик
В первую очередь изготавливается стол. Для этого используется лист толстой фанеры или металла. В нем выпиливаются сквозные отверстия для режущего полотна, крепежей. Через них помещенный снизу ручной агрегат фиксируется к опорной конструкции. Далее лобзиковый стол закрепляется на любом устойчивом деревянном столе. Добавляются направляющие рейки.
При необходимости станок можно быстро разобрать.

Стандартное устройство комплектуется пружинами, обеспечивающими пилке требуемый уровень натяжения. Не обойтись без коромысла, один его край находится под натяжением пружин, второй обеспечивает крепление к режущему элементу лобзикового станка. Можно зажать полотно и между двумя направляющими валиками.
Перед началом работы на самодельном лобзике обязательно отключают маятниковый ход.
Станок из швейной машины
Лобзик из швейной машины содержит регулятор хода пилки, обеспеченный переключателем скоростей на оборудовании.
Для изготовления снимают механизм плетения нитей. В большинстве конструкций он помещается снизу. Отвинчивают болты, выбивают шплинт, снимают приводной вал, ведущий к узлу плетения нитей.

Затем открывается верхняя защитная панель, расширяется паз, по которому перемещалась игла, до параметров ширины пилки. Пилы для лобзика немного видоизменяют: подрезают согласно размерам самой длинной иглы, которая могла бы быть установлена на аппарате. Чтобы не делать переходник для фиксации режущего элемента на посадочное место, стачивают верхние резцы, делают острой нижнюю часть полотна. В иглодержатель устанавливают резак. После этого приступают к выпиливанию заготовок.
В жизни домашнего мастера, периодически возникает необходимость произведения фигурных и просто декоративных пропилов, в том числе и внутри заготовки. Бензиновые, циркулярные и обычные ручные пилы с данной задачей справиться не могут, ввиду своих конструктивных особенностей. Для решения данной проблемы используют ручной лобзик, специально предназначенный для выполнения подобных операций. Данный инструмент несомненно справляется со своей задачей, но при работе с большими объемами или габаритными материалами, определенно проигрывает своему более профессиональному собрату – лобзиковому станку.
Приобрести новенький, блестящий и функциональный настольный лобзик не составляет абсолютно никакого труда. Прилавки магазинов заполнены продукцией различных производителей, нацеленной на профессиональную и любительскую работу. С первого взгляда, представленные в продаже стационарные лобзики, кажутся очень сложными в плане конструкции, чью сборку производят только избранные эксперты-техники. На самом же деле – это вполне простые устройства, которые можно сделать самостоятельно, имея желание и пошаговую инструкцию. И если первый пункт зависит только от Вас, со вторым мы обязательно поможем и предоставим подробное руководство по самостоятельной сборке самодельного лобзикового станка.















































